Székesfehérvár-Old-Hill Residence Villapark - családi ház - 163m²
Ár: 159 M

NÉMETH ZOLTÁN
ingatlanszakértő
06 70 429 3053
nemeth@legyotthon.hu
- Termékkód:
- LP03
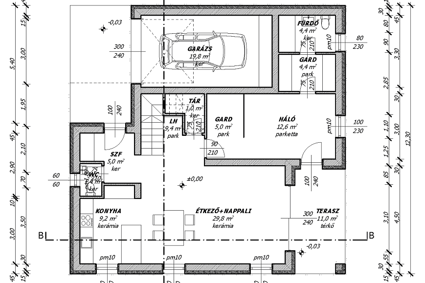
Nagyvonalú terek, kifinomult elegancia
Székesfehérvár – Öreghegy rendezett lakókörnyezetében épülő villaparkban kínáljuk megvételre ezt az új építésű, exkluzív otthont.
A mindössze 12 ingatlanból álló, magas színvonalú lakóparkban kétszintes, 163 m²-es villák várják első lakóikat. A nagyvonalú terekkel, átgondolt térszervezéssel és letisztult megjelenéssel rendelkező házak olyan életteret kínálnak, ahol minden részlet a kényelmet és az eleganciát szolgálja. A gardrób és teraszkapcsolatos hálószobák, a kertkapcsolatos nappali és a különálló életterek itt olyan harmonikus egységet alkotnak, ahol a kertvárosi nyugalom, a nagyvárosi életvitel és a magas minőség egyaránt megtalálható.
A zárt villapark diszkrét, igényes környezetet biztosít, ahol a nyugalom és a biztonság alapértelmezett.
Egy hely, ahol az otthon több, mint élettér – egy jól megválasztott döntés a mindennapokra.
Szerkezeti jellemzők:
- 30-as Porotherm tégla falazat
- 10-es Leier válaszfalak
- egyedi gyártású, fokozottan hőszigetelt, 5 kamrás műanyag nyílászárók szürkés-barna színben
- rejtett redőnytok kiépítések
- fokozottan hőszigetelt, szekcionált, nyílászárókkal színazonos elektromos garázskapu, 2 távirányítóval
- 15 cm-es hőszigetelés
Gépészet:
- hőszívattyú által üzemeltett padlófűtés
- fürdőszobákban törölköző szárítős radiátorok
- hőszivattyú által üzemeltetett meleg víztartály
- 1 x 32 A túlfeszültség elleni védelemmel, életvédelmi fi-relével
- H-tarifa
Kulcsrakész vételár tartalmazza:
- választható beltéri hidegburkolatok 10 000 Ft/m2 árig
- választható kültéri hidegburkolatok 6 000 Ft/m2 árig
- választható melegburkolatok 6 000 Ft/m2 árig
- választható garázsburkolat 4 000 Ft/m2 árig
- választható beltéri ajtók 80 000 Ft/db árig
- választható szaniterek
- választható falszínek
- elektromos redőny fogadás előkészítése
- riasztó fogadás előkészítése
- kaputelefon fogadás előkészítése
- klíma fogadás előkészítése
- TV/internet hálózat kiépítése
- 1 db 19,8 m2 garázs
- 1 db térkövezett kocsibeálló
- 1 db kerti csap
- színezett drótkerítés a telekhatáron
- a villapark színvilágával azonos utcafronti kerítés
- tereprendezés (parkosítás nélkül)
A kulcsrakész vételár nem tartalmazza (előre egyeztetett felár ellenében kérhető):
- lámpatestek
- riasztó
- kaputelefon
- klíma
- redőnyök szúnyoghálóval
Átadás: a szerződéskötéstől számított 12 hónap.
Bővebb információért keressen minket bizalommal, segítünk megtalálni új otthonát.
- Vármegye
- Fejér vármegye
- Település
- Székesfehérvár
- Kategória
- családi ház
- Építés módja
- tégla
- Átadás éve
- 2027
- Szintek száma
- 2 szintes
- Szobák száma
- 5
- Állapot
- új építésű
- Fűtés típusa
- hőszivattyú
- Klimatizált
- nem
- Kertkapcsolatos
- igen
- Erkély / Terasz
- van
- Kert mérete
- 300m2
- Parkolás
- garázs