Sárkeresztes- családi ház - 4 szoba - 122 m²
Irányár: 122 M

NÉMETH ZOLTÁN
ingatlanszakértő
06 70 429 3053
nemeth@legyotthon.hu
- Termékkód:
- UH01
Új építésű otthon Fehérvár kapujában
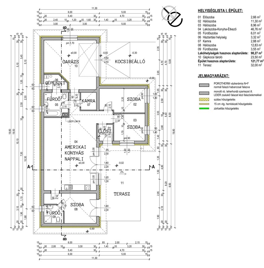
Székesfehérvár közkedvelt agglomerációjában, Sárkeresztesen kínáljuk megvételre ezt az új építésű, 3 szoba + nappalis, kiváló elrendezésű ikerházat.
Az 1168 m²-es telken épülő két otthon különálló családi házként valósul meg, saját kerttel és privát bejárattal. A tágas szobák, a napfényes nappali, a két fürdőszoba, a házból közvetlenül elérhető garázs, valamint a kamra és a mosókonyha kényelmes életteret biztosít a család minden tagja számára. A nappaliból nyíló nagy terasz és a mintegy 400 m²-es, kizárólagos használatú kert ideális helyszín pihenéshez, közös programokhoz.
Csendes, kertvárosias környezetben, Székesfehérvár könnyű elérhetőségével teremt stabil, hosszú távon is értékálló otthont.
Szerkezeti jellemzők:
- 30-as Porotherm tégla falazat
- 10-es Porotherm válaszfalak
- hőszigetelt, 3 rétegű, műanyag nyílászárók, redőnyökkel (kívül antracit, belül fehér színben)
- nyíló-bukó nyílászárók (fehér színben)
- belül műanyag, kívül fémlemez ablakpárkányok
- fenyőfa beltéri ajtók
- minőségi, kezelt fa tetőszerkezet antracit színű, Bramac cserép fedéssel
- tetőcseréphez színben illő ereszcsatorna (eloxált alumínium), föld feletti vízelvezetéssel
- vajszínű, világos Dryvit homlokzati vakolat
Szigetelés:
- 15 cm-es homlokzati hőszigetelés
- 10 cm-es vízálló lábazat szigetelés
- 30 cm-es lépésálló szigetelés a padlózatban
Gépészet:
- Bosch kondenzációs gázkazán által üzemeltetett padlófűtés
- 1 db hűtő-fűtő klíma
- 3 x 20 A túlfeszültség elleni védelemmel, életvédelmi fi-relével
- Schneider kapcsolók és konnektorok bézs színben
Kulcsrakész vételár tartalmazza:
- választható hidegburkolatok 5 000 Ft/nm árig
- választható meleg burkolatok 5 000 Ft/nm árig
- db garázs, előtte térkövezett kocsibeálló
- bejárati ajtó
- riasztórendszer fogadásának kiépítése
- spot világítás kiépítése
- antracit színű, részben automatizált redőnyök
Kulcsrakész átadás a szerződéskötéstől számított 12 hónap.
Sárkeresztes kedvelt, rendezett településén bolt, bölcsőde, óvoda, iskola, orvos, gyógyszertár egyaránt elérhető. Székesfehérvár autóval 10 perc alatt megközelíthető, a tömegközlekedés a város irányába kiváló!
Bővebb információért keressen minket bizalommal, segítünk megtalálni új otthonát.
- Vármegye
- Fejér vármegye
- Település
- Sárkeresztes
- Kategória
- családi ház
- Építés módja
- tégla
- Átadás éve
- 2026
- Nettó méret
- 122 m²
- Szintek száma
- földszintes
- Szobák száma
- 4
- Állapot
- új építésű
- Fűtés típusa
- gáz-cirkó
- Klimatizált
- igen
- Erkély / Terasz
- van
- Kert mérete
- 400m²