Bodajk - családi ház - 200 m²
Irányár: 85 M

NÉMETH ZOLTÁN
ingatlanszakértő
06 70 429 3053
nemeth@legyotthon.hu
- Termékkód:
- H1
Tágas családi otthon Bodajk szívéhez közel
Bodajk központjához közel, mégis csendes utcában kínáljuk megvételre ezt a háromszintes, mintegy 200 m²-es családi házat, amely ideális választás nagycsaládosok, összeköltöző generációk vagy otthonról dolgozók számára.
A hat szobának, a két fürdőszobának és a jól elkülöníthető szinteknek köszönhetően itt valóban mindennek jut hely — akár több gyermek, külön élettér vagy egy nyugodt iroda kialakítása esetén is.
Az 1990-ben épült ingatlan belső tereit az elmúlt években felújították: megtörtént a nyílászárók cseréje korszerű, hőszigetelt műanyag ablakokra és ajtókra, megújult az elektromos hálózat, valamint a fűtési rendszer is több lehetőséget kínál. A vegyes tüzelésű kazán és a gáz-cirkó rendszer mellett hűtő-fűtő klímák gondoskodnak a kellemes hőmérsékletről egész évben, az energiaellátást pedig napelem rendszer támogatja. A ház azonnal költözhető állapotú.
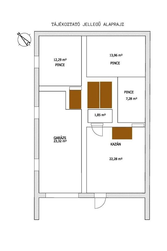
A pinceszinten garázs, műhely, tároló — akár mosókonyhának is alkalmas helyiség — valamint pince található, így a praktikus kiszolgáló terekből sincs hiány.
Az 1600 m²-es, körbezárt telek zárt utcafronti kerítéssel biztosítja a privát életteret és a biztonságot.
A belső terek már megújultak, a külső homlokzat és a szigetelés azonban az új tulajdonos elképzelései szerint fejezhető be, így lehetőséget ad arra, hogy a ház külső megjelenését saját ízlésére formálja.
Ideális választás mindazok számára, akik egy nagy, azonnal lakható otthont keresnek jó elhelyezkedéssel, és szívesen alakítják tovább saját elképzeléseik szerint.
Bővebb információért keressen minket bizalommal, segítünk megtalálni új otthonát.
- Vármegye
- Fejér vármegye
- Település
- Bodajk
- Kategória
- családi ház
- Építés módja
- tégla
- Építés éve
- 1980-2000
- Nettó méret
- 200 m2
- Szintek száma
- 3 szintes
- Szobák száma
- 5+ szoba
- Állapot
- költözhető
- Fűtés típusa
- gáz-cirkó
- Klimatizált
- igen
- Erkély / Terasz
- van
- Kert mérete
- 1662 m2
- Parkolás
- garázs